ZESTAW: skrzynka na listy VERONA z domofonem głośnomówiącym FERMAX iLOFT DUOX PLUS 50771
Cena regularna:
Cena regularna:
towar niedostępny
dodaj do przechowalni
Opis
ZESTAW: przelotowa skrzynka na listy VERONA z kompletnym domofonem głośnomówiącym FERMAX iLoft DUOX PLUS ref. 50771
W skład zestawu wchodzą:
- 1x - przelotowa skrzynka na listy VERONA dla jednego użytkownika
- 1x - panel domofonowy FERMAX Cityline DUOX PLUS
- 1x - unifon głośnomówiący FERMAX iLOFT DUOX PLUS
- 1x - zasilacz systemowy z filtrem DUOX PLUS
- 1x - zasilacz DUOX PLUS

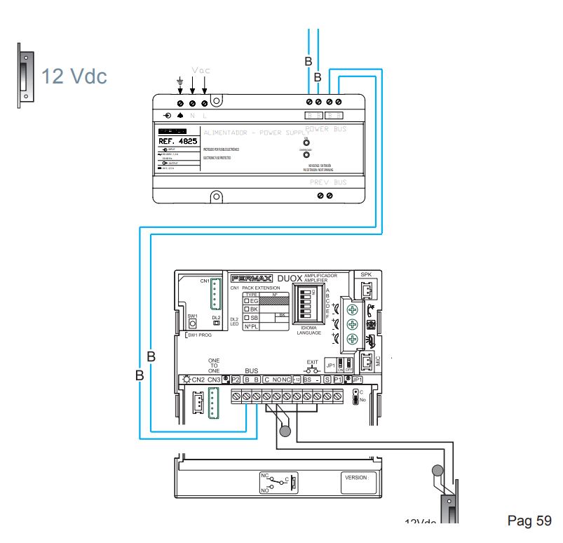
Niezbędne okablowanie
Instalacja domofonowa do powyższego zestawu wymaga okablowania 4-żyłowego lub 2-żyłowego, zaleznie od zastosowanego elektrozaczepu. Połączenie między panelem a monitorem jest dwużyłowe.
Zestaw pozwala na sterowanie otwieraniem furtki. Sterowanie dodatkowym urządzeniem (np. bramą automatyczną) jest możliwe z dodatkowym przekaźnikiem, do nabycia oddzielnie.
Integracja domofonu FERMAX iLoft DUOX PLUS w skrzynce na listy
Ze względu na specyfikę instalacji FERMAX, znajdujący się w zestawie panel domofonowy musi zostać wmontowany w panel przedni skrzynki, tak by widoczny był oryginalny głośnik (okrągłe dziurkowane pole na środku panela Fermax) oraz opcjonalnie przycisk panela CitiLine.
Integracja panela domofonowego ze skrzynką wykonywana jest przez Bomap przed wysyłką zestawu.
Domofon należy następnie podłączyć zgodnie z oryginalną instrukcją montażu.
Opcje rozbudowy
Zestaw można rozbudować o dodatkowy unifon iLoft DUOX PLUS.
Do zestawu można dokupić elektrozaczep, który będzie służył do otwierania furtki, oraz akcesoria do jego montażu. Zestaw umożliwia bezpośrednie sterowanie elektrozaczepem - nie wymaga dodatkowego zasilania. [zobacz elektrozaczepy]
SKRZYNKA W ZESTAWIE
Skrzynka przelotowa VERONA z jednym wrzutem i jednym przyciskiem domofonu - dla jednego użytkownika.
Przeznaczona jest do wmurowania - do montażu w słupku ogrodzenia lub w murze. Ma regulowaną głębokość.
Mieści korespondencję A4.
Skrzynkę VERONA zaprojektowaliśmy tak, aby stanowiła część systemu domofonowego.
W skrzynkę wbudowany jest panel Citiline DUOX PLUS FERMAX.
Produkt polski, produkowany przez Bomap Spółkę z o.o.
Skrzynka spełnia normy europejskie.
Wymiary skrzynki:
- panel przedni: 290 x 290 mm
- panel tylny: 290 x 150 mm
- otwór wrzutowy: 230 x 30 mm
- szerokość szuflady: 270 mm
- regulowana głębokość szuflady: 190-240, 190-270, 280-410 lub 360-600 mm
Użyte materiały:
Dzięki zastosowaniu materiałów najwyższej jakości skrzynka jest odporna na działanie czynników atmosferycznych:
Materiały użyte w wykończeniu "stal nierdzewna":
- panel przedni i panel tylny – szlifowana stal nierdzewna grubości 2 mm
- klapka – szlifowana stal nierdzewna grubości 0,8 mm
Materiały użyte w wykończeniu "lakierowana proszkowo":
- panel przedni i panel tylny – stal nierdzewna grubości 2 mm lakierowana proszkowo
- klapka – aluminium lakierowane proszkowo
Pojemnik do wmurowania
Dwuczęściowa rozsuwana teleskopowa szuflada pozwala na dopasowanie skrzynki do ścian i murków o różnej grubości.
Typ pojemnika do wmurowania zależy od wybranej grubości muru:
- grubość muru 28-60 cm - szuflada ma niewielki skos
- grubość muru 19-27 cm - szuflada ma bardzo duży skos, który zapewni wystarczająco dużo miejsca na korespondencję A4 pomimo małej głębokości.
Szuflada wykonana jest z ocynkowanej blachy lakierowanej proszkowo (wersja standard) lub ze stali nierdzewnej (wersja premium).
Cechy charakterystyczne skrzynki VERONA
Skrzynka ma budowę panelową, składają się na nią: panel przedni, panel tylny i teleskopowa szuflada (pojemnik do wmurowania).
Panel przedni ma otwór wrzutowy na listy osłonięty klapką. Otwór ma zagięcie uniemożliwiające wyjęcie korespondencji przez osoby niepowołane.
Panel tylny ma zamykane na klucz drzwiczki do wyjmowania korespondencji. W zestawie są dwa klucze. Przezroczyste okienko z PCV na drzwiczkach umożliwia sprawdzenie, czy w skrzynce znajdują się listy.
Zamek umieszczony jest po lewej stronie drzwiczek – drzwiczki otwierają się na prawo. Na zamówienie drzwiczki mogą otwierać się w drugą stronę (zamek po prawej stronie).
Skrzynka na listy VERONA to produkt polski, produkowany przez Bomap Spółkę z o.o. Skrzynka spełnia normy europejskie.
Opcje kolorów skrzynki
Skrzynkę możesz zamówić z frontem i tyłem wykonanym ze szlifowanej stali nierdzewnej lub ze stali lakierowanej proszkowo na wybrany kolor.
Paleta kolorów standardowych:
- DB703 antracyt diament (z diamentowym wykończeniem, drobna struktura, matowy
- RAL 7016 antracyt (drobna struktura, matowy)
- RAL 7024 grafit (drobna struktura, matowy)
- RAL 9005 czarny (drobna struktura, matowy)
- RAL 9016 biały (gładki)
- RAL 1036 złoty perłowy (gładki)
- RAL 6005 zielony mech (gładki)
- RAL 8017 brązowy czekoladowy (drobna struktura)

Możemy także pomalować skrzynkę na inny kolor z palety RAL, aby lepiej dopasować ją do koloru Twojego ogrodzenia. Opcja ta dostępna jest za dopłatą. Wybierz opcję "inny kolor palety RAL", a następnie podaj wybrany numer RAL podczas finalizacji zamówienia. Informacje o kolorze skrzynki możesz także wysłać emailem.
Nietypowy kolor może wpłynąć na termin realizacji zamówienia.
Możliwe modyfikacje:
- okienko na nazwisko na panelu frontowym (bez dopłaty) - jeśli nie zostało to ustalone, skrzynki wysyłane są losowo z okienkiem lub bez okienka
- drzwiczki otwierane na lewo - zamek po prawej stronie (bez dopłaty)
DOMOFON FERMAX
UNIFON głośnomówiący iLOFT DUOX PLUS
Unifon iLOFT to nowoczesne urządzenie o stylowym wzornictwie. Jest głośnomówiący (bezsłuchawkowy), obsługuje się go za pomocą mechanicznych przycisków. Pracuje w trybie duplex, nie wymaga przytrzymywania przycisku do prowadzenia rozmowy.
Dane techniczne unifonu:
- sposób obsługi: bezsłuchawkowy, głośnomówiący (duplex)
- mechaniczne przyciski
- sterowanie elektrozaczepem
- funkcja gabinetowa (Doormatic) - automatyczne otwieranie elektrozaczepu po wywołaniu
- sterowanie dodatkowym urządzeniem (np. bramą), z wykorzystaniem dodatkowego przekaźnika ref. 2013
- funkcja podłączenia dzwonka przy drzwiach
- regulacja głośności dzwonienia (z całkowitym wyciszeniem)
- 5 dźwięków dzwonienia do wyboru
- zasilanie 24VDC (z zasilacza w zestawie)
- montaż natynkowy
- wymiary unifonu: 146,5 x 90 x 20 mm
PANEL CITYLINE DUOX PLUS
Panel zewnętrzny CityLine ma jeden przycisk dzwonienia. Wykonany jest z anodowanego aluminium, z przyciskiem oraz wykończeniem ramki z chromowanego zamaku. Podświetlenie etykiety na nazwisko umożliwia komfortowe używanie domofonu.
Panel zewnętrzny zostanie zintegrowany ze skrzynką na listy.
Dane techniczne panela:
- 1 przycisk dzwonienia
- zasilanie 24VDC (z zasilacza w zestawie)
- wymiary: 130 x 128 mm
ZASILACZE
Wymiary: zasilacz z filtrem DIN10 + zasilacz DIN4
******
Specjalizujemy się w skrzynkach wykonywanych na zamówienie.
Możemy dopasować do indywidualnych potrzeb klienta ilość wrzutów, wymiary, sposób montażu i kolor skrzynki. Produkujemy także skrzynki na listy z dodatkowymi opcjami i integracjami (domofonem, wideodomofonem, szyfratorem i innymi urządzeniami). Wykonamy skrzynkę na listy według Twojego pomysłu.
Zapraszamy do naszej siedziby w Opolu oraz do kontaktu telefonicznego (tel. 774513144, 774513140) lub przez pocztę elektroniczną: sklep@bomap.pl. Chętnie odpowiemy na wszystkie pytania i doradzimy jaką skrzynkę, domofon lub wideodomofon wybrać.
DPD, InPost, ORLENPaczka






