Miwi-Urmet ELITE 6025/402-RF zestaw domofonowy dwurodzinny z czytnikiem RFID, białe unifony
Cena regularna:
Cena regularna:
towar niedostępny
dodaj do przechowalni
Opis
Zestaw domofonowy dwurodzinny Miwi-Urmet 6025/402-RF z czytnikiem RFID i białymi unifonami Signo
Zestaw domofonowy firmy Miwi-Urmet do domu dwurodzinnego - dla 2 abonentów.
Montaż podtynkowy lub natynkowy - do wyboru podczas zakupu.
Cena zestawu zależy od wybranego sposobu montażu panela zewnętrznego.
W skład zestawu podtynkowego 6025/402-RF wchodzą:
- 1x dwuprzyciskowa płyta rozmówna panela zewnętrznego ELITE z wbudowanym czytnikiem zbliżeniowym RFID
- 1x obudowa do montażu podtynkowego ELITE 6025/RP-OP-M
- 2x unifon Signo 1140/1 biały z dodatkowym przyciskiem
- 1x wzmacniacz domofonowy 18A2
- 4x brelok zbliżeniowy RFID
W skład zestawu natynkowego 6025/402-RF-N wchodzą:
- 1x dwuprzyciskowa płyta rozmówna panela zewnętrznego ELITE z wbudowanym czytnikiem zbliżeniowym RFID
- 1x obudowa do montażu natynkowego ELITE 6025/OND-M
- 2x unifon Signo 1140/1 biały z dodatkowym przyciskiem
- 1x wzmacniacz domofonowy 18A2
- 4x brelok zbliżeniowy RFID
Czytnik breloków zbliżeniowych RFID
Wbudowany w panel zewnętrzny czytnik RFID umożliwia otwieranie furtki za pomocą breloka lub karty zbliżeniowej.
Sterowanie z unifonu furtką i opcjonalnie bramą
Zestaw umożliwia sterowanie z unifonu elektrozaczepem i dodatkową bramą (sterowanie bramą wykorzystuje dodatkowe 2 żyły).
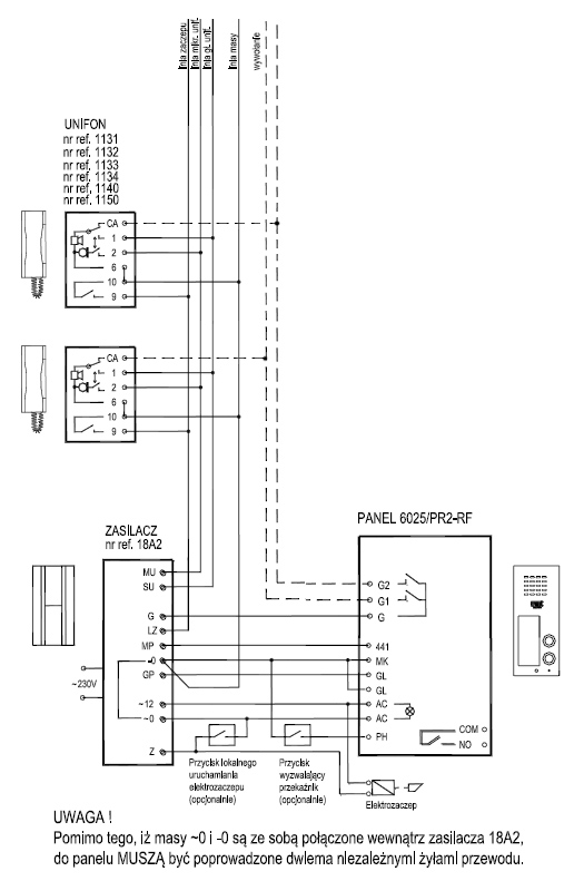
Okablowanie
Do podłączenia zestawu wymagana jest instalacja 10-przewodowa. Panel zewnętrzny połączony jest ze wzmacniaczem domofonowym 9 żyłami, a wzmacniacz ze słuchawką - 5 żyłami (zob. schemat). Otwieranie dodatkowej bramy automatycznej wymaga dodatkowych 2 przewodów.
Zestaw umożliwia także podłączenie dodatkowego zewnętrznego przycisku wyjścia do sterowania elektrozaczepem.
PANEL ELITE 2P
Panel zewnętrzny z dwoma przyciskami dzwonienia ELITE 6025 wykonany jest ze stali nierdzewnej.
W panel wbudowany jest czytnik RFID, który pozwala na otwarcie elektrozaczepu za pomocą breloków i kart zbliżeniowych (kluczy RFID) w standardzie 125kHz.
Możliwe jest zaprogramowanie do 2000 kluczy RFID.
Panel pozwala na ustawienie czasu otwarcia elektrozaczepu sterowanego z czytnika RFID - od 1 do 20 sekund.
Pole wizytówki na nazwisko jest podświetlane. Wymiary etykiety opisowej: 30 x 70 mm.
Wersja podtynkowa panela
Składa się z płyty rozmównej 6025/PR2-RF oraz obudowy 6025/RP-OP-M do montażu podtynkowego.
Wymiary wersji podtynkowej:
Płyta rozmówna: 65 x 155 x 20 mm.
Obudowa podtynkowa: 87 x 176 x 23 mm (z czego 15 mm w tynku, 8 mm na zewnątrz).
Wersja natynkowa panela
Składa się z płyty rozmównej 6025/PR2-RF oraz obudowy z daszkiem osłonowym 6025/OND-M do montażu natynkowego.
Wymiary wersji podtynkowej:
Płyta rozmówna: 65 x 155 x 20 mm.
Obudowa natynkowa: 67 x 157 x 23-35 mm (dół-góra).
UNIFON Signo 1140/1 biały
Unifon Signo 1140/1 w błyszczącej białej obudowie ma duży, wygodny w obsłudze przycisk otwierania drzwi oraz jeden dodatkowy przycisk, który można wykorzystać na przykład do otwierania dodatkowej bramy automatycznej. Ma także miejsce na 2 kolejne przyciski.
Charakteryzuje go wyjątkowo stylowe, eleganckie wzornictwo. Został zaprojektowany przez biuro projektowe Citterio we współpracy z Toan Nguyen.
Do unifonu można dokupić moduł (przełącznik) 3-stopniowej regulacji głośności dzwonienia z opcją wyłączenia.
Proste przyłączanie przewodów - na zaciski śrubowe - nie wymagające lutowania.
Wymiary unifonu: 80 x 225 x 40 mm
W zestawie znajdują się 2 unifony - po jednym dla każdego abonenta.
Zestaw można rozbudować o kolejne unifony w standardzie 5+n. Podczas wywołania wszystkie unifony u danego abonenta będą dzwoniły jednocześnie.
Wzmacniacz (zasilacz) domofonowy 18A1
Wzmacniacz 18A2 przystosowany jest do montażu na szynę DIN (zajmuje 6 modułów DIN), ale ma także ramkę, która zakrywa zaciski przewodów i pozwala na bezpieczny montaż zasilacza na ścianie.
Wymiary wzmacniacza: 106 x 90 x 66 mm (bez osłony), 110 x 130 x 66 mm (z osłoną).
DPD, InPost, ORLENPaczka






